Calais



The Calais is a generously scaled, single-story house blending classic style with modern materials. 

Designed for family life, it features a spacious living room with terrace access and a separate, dedicated kitchen. The thoughtful layout includes a private wing with three comfortable bedrooms, a large family bathroom, and a guest WC. 

A standout feature is the exceptionally large integrated garage with an adjoining workshop, offering unparalleled practicality and space for a family seeking enduring comfort.

Every model in our catalog is fully customizable. If none of our standard options fit your vision, we also offer bespoke house designs from scratch.

Usable area 165.2 m2
External area 19.8 m2
Footprint 217.9 m2
Storey count 1
Bathroom count 2
Bedroom count 4

Prefabricated House Structure Kit

Basic Structure 33 105 €
Optimal Structure 49 657 €
Passive Structure 64 003 €
Super Passive Structure 69 070 €

Turnkey solution* 298 700

*This price is for an energy-efficient house with a great value due to its carefully chosen materials and applies for the Portuguese market only

**The final cost will depend on your selected finishes and does not include VAT.

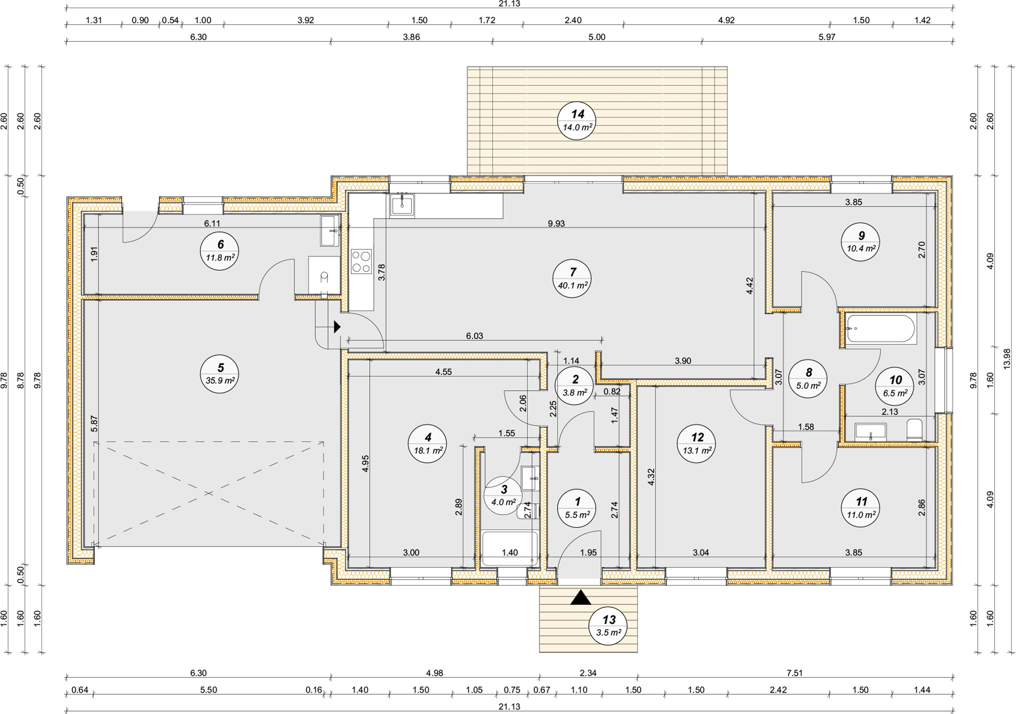
Project plan

01 Hallway 5.5 m2
02 Corridor 3.8 m2
03 WC 4.0 m2
04 Master bedroom 18.1 m2
05 Garage 35.9 m2
06 Technical room 11.8 m2
07 Kitchen / Living room 40.1 m2
08 Corridor 5.0 m2
09 Bedroom #1 10.4 m2
10 Bathroom 6.5 m2
11 Bedroom #2 11.0 m2
12 Bedroom #3 13.1 m2
13 Porch 3.7 m2
14 Terrace 16.1 m2

Modification pricing

Please note that the prices listed below refer exclusively to the cost of the building structure!

This price includes only the structure in the specified technical options.

The foundation, engineering and electrical systems, as well as the interior and exterior finishes, are not included in the house structure price.

Explore a detailed technical description of our building structure technology, covering the methodology, materials, and engineering standards, by clicking here.

Basic Structure

33 105

Additional fees:

  • Assembly 15 300 €
  • Delivery 4.5 €/km

Our basic preset delivers a foundational solution for the building frame, giving you a prefabricated structure that you can then customize and complete.

It’s a great choice for those looking to reduce costs and who have the expertise to complete the construction themselves.

Optimal Structure

49 657

Additional fees:

  • Assembly 16 600 €
  • Delivery 4.5 €/km

The optimal preset is designed for moderate climates, with a building frame that includes 200 millimeters of insulation and an internal vapor barrier. This setup guarantees a comfortable microclimate and supports the structural integrity and longevity of the building.

This solution is perfect for comfortable year-round living in regions with mild winter conditions.

Passive Structure

64 003

Additional fees:

  • Assembly 18 000 €
  • Delivery 4.5 €/km

This preset features additional external insulation for the building frame, with thickness adjusted according to local climate conditions.

The primary benefit of this solution is enhanced thermal protection, resulting in a cooler home during the summer and reduced energy consumption for heating in the winter. Over the next decade, this passive insulation will lead to substantial savings on both heating and cooling costs.

This solution is well-suited for regions with harsh winters as well as very hot climates.

Super Passive Structure

69 070

Additional fees:

  • Assembly 21 700 €
  • Delivery 6.0 €/km

Our SuperPassive Preset meets Passivhaus standards, providing an exceptional solution for energy-efficient, comfortable homes. These prefab preset feature advanced insulation that maintains a steady internal temperature year-round, reducing energy use by up to 75% compared to standard builds.

That also prevents draughts, cold spots, mold, and condensation, promoting a healthier living environment. Designed with a ‘fabric first’ approach and backed by extensive research, our SuperPassive walls deliver lasting quality and performance for both comfort and sustainability.

Get in touch




* If inquiring about a specific house, please mention which house you're interested in.


© 2024 All rights reserved by Senmar.