Pilsen



The Pilsen model is a stunning statement in modern, L-shaped architecture. Its ground floor is dedicated to vibrant daily life, featuring a spacious open-concept kitchen and living room that flows onto a sheltered porch, plus a convenient guest WC.

The second story is a private night zone, thoughtfully separated with two comfortable bedrooms, a large full bathroom, and a remarkable, expansive upper terrace.

Pilsen masterfully blends high-impact design with intelligent living, ideal for the contemporary family.

Every model in our catalog is fully customizable. If none of our standard options fit your vision, we also offer bespoke house designs from scratch.

Usable area 75.2 m2
External area 92.9 m2
Footprint 106.8 m2
Storey count 2
Bathroom count 1
Bedroom count 2

Prefabricated structure kit

Basic Structure 25 310 €
Optimal Structure 39 800 €
Passive Structure 48 040 €
Super Passive Structure 52 350 €

Turnkey solution* 155 700

*This price is for an energy-efficient house with a great value due to its carefully chosen materials and applies for the Portuguese market only

**The final cost will depend on your selected finishes and does not include VAT

Storey 1

01 Hallway 7.3 m2
02 WC 2.9 m2
03 Kitchen / Living room 28 m2
04 Porch 12.7 m2
05 Terrace 32.9 m2

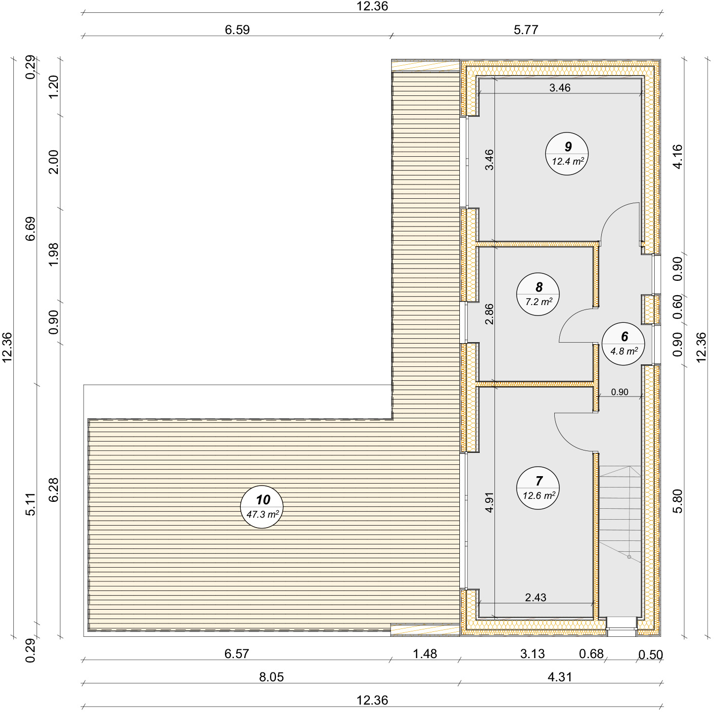
Storey 2

06 Hallway 4.8 m2
07 Bedroom #1 12.6 m2
08 Bathroom 7.2 m2
09 Bedroom #2 12.4 m2
10 Terrace 47.3 m2

Modification pricing

Please note that the prices listed below refer exclusively to the cost of the building structure!

This price includes only the structure in the specified technical options.

The foundation, engineering and electrical systems, as well as the interior and exterior finishes, are not included in the house structure price.

Explore a detailed technical description of our building structure technology, covering the methodology, materials, and engineering standards, by clicking here.

Basic Structure

25 310

Additional fees:

  • Assembly 12 800 €
  • Delivery 3.0 €/km

Our basic preset delivers a foundational solution for the building frame, giving you a prefabricated structure that you can then customize and complete.

It’s a great choice for those looking to reduce costs and who have the expertise to complete the construction themselves.

Optimal Structure

39 800

Additional fees:

  • Assembly 13 900 €
  • Delivery 3.0 €/km

The optimal preset is designed for moderate climates, with a building frame that includes 200 millimeters of insulation and an internal vapor barrier. This setup guarantees a comfortable microclimate and supports the structural integrity and longevity of the building.

This solution is perfect for comfortable year-round living in regions with mild winter conditions.

Passive Structure

48 040

Additional fees:

  • Assembly 15 000 €
  • Delivery 3.0 €/km

This preset features additional external insulation for the building frame, with thickness adjusted according to local climate conditions.

The primary benefit of this solution is enhanced thermal protection, resulting in a cooler home during the summer and reduced energy consumption for heating in the winter. Over the next decade, this passive insulation will lead to substantial savings on both heating and cooling costs.

This solution is well-suited for regions with harsh winters as well as very hot climates.

Super Passive Structure

52 350

Additional fees:

  • Assembly 17 800 €
  • Delivery 4.5 €/km

Our SuperPassive Preset meets Passivhaus standards, providing an exceptional solution for energy-efficient, comfortable homes. These prefab preset feature advanced insulation that maintains a steady internal temperature year-round, reducing energy use by up to 75% compared to standard builds.

That also prevents draughts, cold spots, mold, and condensation, promoting a healthier living environment. Designed with a ‘fabric first’ approach and backed by extensive research, our SuperPassive walls deliver lasting quality and performance for both comfort and sustainability.

Get in touch




* If inquiring about a specific house, please mention which house you're interested in.


© 2024 All rights reserved by Senmar.